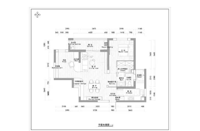
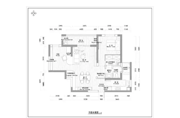
Floor Plan
A 64sqm small home, using semi-open and real wood minimalist design, makes this home designed by a straight man something women would want to live in.


The owner is a single white-collar worker in a Japanese company, spending half the year traveling worldwide. Our first discussion about his future home ideas centered on “warm, rational, textured, restrained.” After initial communication, he trusted us to boldly create a personalized space for him.
The owner had strict material requirements: primarily real wood, leather sofa and chairs, along with a separate walk-in closet and a full-wall bookshelf study.
The design, material selection, and soft furnishing plans were adjusted multiple times during implementation. After five months of construction, the total budget for soft and hard furnishings was locked at 250,000 RMB.






Entrance screen wall. The artwork at the entrance was carefully chosen, and the owner was very satisfied with the selected wood collage painting, saying it conveys a sense of “harmony between heaven, earth, and people.”


Entrance cabinet, kitchen, and screen wall. This newly built wall effectively separates the kitchen and dining areas.


A single wall organizes the space with虚实 (virtual and real) and rational flow.


Entrance, kitchen, dining room, living room, walk-in closet. A complete living flow is visible.
Although the home is small, the owner pursues high quality of life and wanted to move in quickly after renovation. Thus, the walls were specially painted with Skshu Paint’s Yunhui series latex paint, which meets healthy water-based coating standards, is additive-free, and allows moving in just 8 hours after application. Its environmental and safety features impressed the owner. Additionally, considering Shanghai’s humid rainy season, the owner valued this series for its anti-mold and anti-bacterial properties, preventing mold growth due to dampness. It also contains bamboo charcoal factors to freshen indoor air. Skshu Paint is a leading domestic brand emphasizing eco-friendliness, with health standards surpassing international norms. It achieves zero additives in formulation and production, and after 8 hours of ventilation, odor levels meet GB 50325 indoor air quality standards, ensuring peace of mind. The paint film is durable and scrub-resistant, ideal for scenarios like children accidentally dirtying walls, making walls long-lasting and easy to clean.

1. The limited kitchen space is enhanced with glass doors for transparency.
2. Gray floor tiles paired with white wall tiles create a visual effect of expanding space.


Ultra-minimalist clear glass kitchen door maximizes transparency in the traditional enclosed linear kitchen.


Adequate lighting, uniform horizontal grain EGG board matte bread tiles, and light gray hexagonal tiles alleviate the闭塞 (claustrophobic) feel of the linear enclosed kitchen.


Mixing wood, leather, and metal elements instantly highlights the space’s texture.


Curved treatments create continuous space.


Entrance area, dining area, photo wall, and wash area.


The owner required high-capacity sideboard storage for wine, display, utensils, and party supplies.
The dining table was chosen with a masculine aesthetic—full black walnut wood—paired with chairs featuring hard lines and leather wrapping for comfort. Combined with rose gold linear pendant lights, the space exudes a strong sense of solidity, stability, and quality with comfortable and lively elements.


Sideboard details: Hermès gray marble edging and oak wood hot-pressed veneer panels.


Dining room, living room, and semi-open study.
1. The living room and study use a semi-open design to enhance spatial fluidity.
2. Curved treatments make transitions between spaces smoother.
3. The TV cabinet is designed to float, reducing cleaning死角 (dead corners).


Living room curved treatment forms a continuous space.


Attempted a formal “TV wall” design.
Black silk texture tiles and oak veneer panels are aligned with a 20mm wide U-shaped black brushed aluminum strip. Reserved for a 60-inch TV, the height was set based on the owner’s seated position on the sofa, ensuring the background wall and TV screen are flush. The lower TV cabinet remains floating for easy cleaning.


TV cabinet material joints and detailing.


Internal storage designed to owner’s requirements with three sliding doors for access control. The TV cabinet is 350mm thick, projecting 250mm from the background wall. With lighting, it forms a rigorous, modern style that the owner applauded for its masculine aesthetic.


Sofa background wall with curved corners, desk, and the owner’s requested full-wall real wood bookshelf.


Sofa background wall and semi-open study “lookout.” Due to budget constraints, an IKEA cost-effective genuine leather sofa was chosen. For practicality, lightness, and versatility without losing robustness, a walnut veneer and iron-edged “three-table” set was selected after extensive comparison.
Different heights, sizes, and mobility meet the owner’s needs for tea, gatherings, balcony relaxation, and study use. The image shows the largest and smallest combinations temporarily placed.


Added a photo wall to address the entrance directly facing the bedroom door, creating a fun hallway display space and an entrance screen wall behind.


One wall for collection display and visual separation, privacy and the home’s spiritual core; when the bedroom opens, it becomes visible.


Shelf display wall and three-separation bathroom.


During final soft furnishing, we heard the long-single owner found a partner. Wishing them well, we imagine future photos of their journeys here.


Three-separation bathroom wash area: white mirror cabinet, light gray terrazzo tiles, custom lit mirror echoing gray hexagonal floor tiles.
With clever lighting, it’s refreshing, robust, bright, and practical. The mirror reflects another route to the walk-in closet.


“Floating” glass “lake surface” and terrazzo “beach.” The scene reflects architectural职业病 (professional habit).


Three-separation toilet area. Terrazzo revival, calm, restrained, robust male aesthetic.


Three-separation shower area. Converted from a device balcony connected to the kitchen, turning wasted space into a bright, private shower.
Frosted glass provides separation without blocking light, with blinds adjusting light and privacy relative to the kitchen.
1. Half of the sofa background wall removed, retaining the shear wall for high transparency and privacy.
2. Utilize vertical space for a full-wall open bookshelf & display cabinet.


Public area and semi-open study relationship. For smooth flow and vision, curved corners connect the sideboard and luggage storage cabinet. Curved corners use manually applied oak veneer; cabinet panels are pre-calculated and hot-pressed with the same veneer for a continuous wood interface.
Half of the sofa background wall removed, retaining the shear wall. The removed area creates a “checkout counter” space. Open externally, closed internally, balancing transparency and a “boss seat.” These designs were most appreciated by the owner.


Bottom-floating, mortise and tenon oak finger-jointed full-wall bookshelf.
Enhances the cultural atmosphere and displays souvenirs from the owner’s travels, creating another personal spiritual space beyond the photo shelf wall.


Outside, a small flower shelf extension; inside, oak shelves fixed into the wall and an “Eames” reading corner for the owner.


The desk is a custom 30mm thick oak finger-jointed board, strong enough to cantilever from the wall, with large-radius curved edges matching the study-dining curve for a “double-curve” flowing space.


Three-separation bathroom and walk-in closet, closet sliding door 1.




Linear walk-in closet with ClosetMaid shelving system. Two sliding doors create a bedroom, closet, bathroom, display area, bedroom circulation flow.


Closet interior, adjustable ClosetMaid shelving system.


The closet compresses part of the bedroom but improves flow.


Custom lit solid wood headboard. For cost, the bed frame was custom-made in a similar color.


Custom bed frame预留 (reserved) for aisle and curtain space. A compact but not cramped bedroom rest area.








A set of black walnut iron coffee tables分散 (dispersed) into three small side tables to create space.


The owner looked from the balcony into the interior, exclaiming this is the “exquisite modern wooden museum” he wanted.
One home design a day, you can also have a more beautiful home.
Private message reply [Zhihu] to hire a designer for your renovation.
















































